Chief Over-the-Whiteboard Interactive Display Mount (OB1U)
Heavy-Duty Mounting Over Existing Chalkboards / Whiteboards
The Chief OB1U makes it simple to install large interactive flat panel displays over existing whiteboards or chalkboards — without demolition or surface removal. Arriving largely pre-assembled, it minimizes install time and allows adjustable placement for accessibility — ideal for classrooms, front-of-room corporate training, and ADA-conscious environments.
Supports large displays 50–80" with up to 310 lb (140.6 kg) capacity.
This rail-based system anchors into multiple wall types and offers telescoping legs for flexibility around existing obstructions, conduit runs, or cabinetry.
Key Features
- Supports 50–80" displays
- Heavy-duty capacity: 310 lb / 140.6 kg
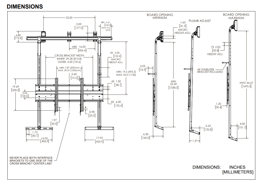
- VESA up to 1020 × 500 mm (extendable to 1020 × 600 mm using optional FHB7036 or FHB7037)
- 26" (660 mm) of display height adjustability
- Rail-style interface — hang the display after mounting brackets, no box-removal required
- Installs into wood, concrete, steel, or cinder-block
- Hardware included for 16" and 24" on-center studs (minimum 2 stud engagement)
- Lateral shift for easy left/right alignment
- Maintains minimum 4" (102 mm) wall clearance
- Plumb adjustment up to 1.5° for uneven walls
- Telescoping legs accommodate classroom objects and infrastructure
The fastest way to mount a heavy IFP over an existing board — without tearing the room apart.
Chat with an Expert
Our industry experts offer personalized guidance and unparalleled expertise to help you find the perfect tools for your technology
-
Product FeaturesOver Board
-
Dimensions
-
Product Weight
-
Max Display Weight
-
Max Display Size
-
VESA Pattern
Request a quote for discounted pricing and shipping rates.
Basic dock-to-dock shipping applied. Additional charges required for inside delivery.Additional freight charges apply for orders shipped to Alaska, Hawaii, or Puerto Rico.
Discounted shipping rates available for bulk orders. To request a quote or for additional product questions please contact us.
Looking for something other than Chief Over-the-Whiteboard Interactive Display Mount (OB1U)
We’ve got you covered with more choices!







